
Àüü¸é Àû 43.75Æò, °ÇÃà¼Ò¿ä ºñ¿ë (ÁÖÅÃ)3¾ï5õ¸¸¿ø(Æò´ç800¸¸¿ø), ´ãÀå°ø»ç ±æÀÌ 80m ³ôÀÌ 1.3m = 3,500¸¸¿ø, ´ë¹® 400¸¸¿ø, ¸¶»çÅä ¸¶´ç 500¸¸¿ø


- º¹ÃþÇÑ¿Á 34.75Æò+º¹Ãþ(´Ù¶ô9Æò)=43.75Æò - Ư¡
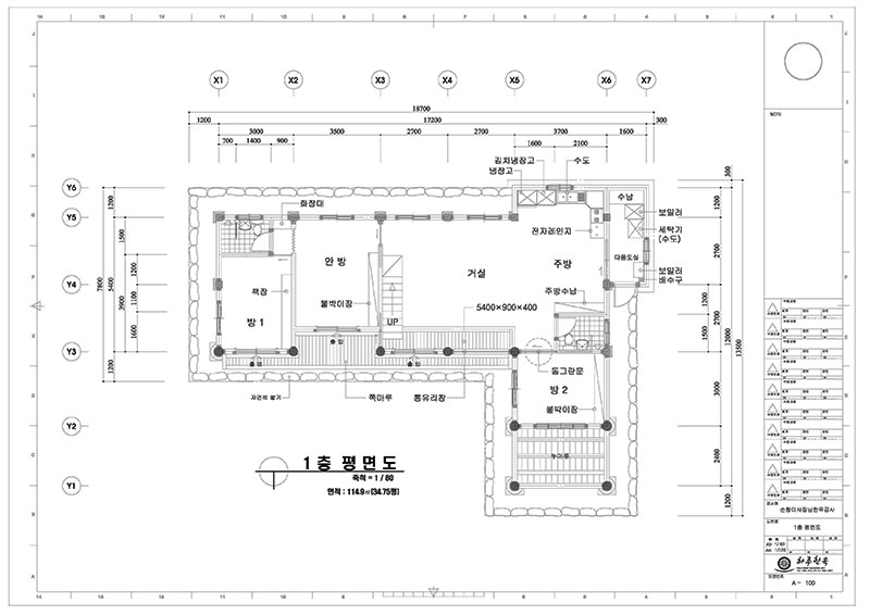
1. ÀÛÀº Å𸶷ç + Âʸ¶·ç¸¦ ¿¬°áÇÏ¿© ³ÐÀº È®ÀåÇü Åð¸¶·ç ¿¬Ãâ
2. ´©¸¶·ç¿Í ¼Àç¿Í ÁÖ¹æÀ» ¿¬°á µ¿¼±À» ÃÖ´ëÇÑ ¹èÄ¡
3. ´©¸¶·ç ¹Ø ¾Æ±ÃÀ̸¦ ¸¸µé¾î °ø°£È°¿ë.
4.°Å½Ç ´Ù¶ôÃþ º¹Ãþ±¸Á¶ »ï·®À¸·Î Â¥°í ´Ù¶ôÃþ Ãþ°í 2,200mmÈ®º¸
5.¾È¹æ µÞ¸é ¹ÝħÀ» µÎ¾î ºÙ¹ÚÀÌ ¿ÊÀ弳ġ.
6.±â´ÜÃþÀ» ±âº» GLº¸´Ù 1,000mm³ô¿© ÁýÀüü¸¦ µ¸º¸À̰ÔÇÔ.
7.¹Ù´Ú Àüü¸¦ ȲÅäÀåÆÇÀ¸·Î ¹®ÅÎÀÌ ¾ø´Â ÀüüÁú°¨.



Å𸶷ç + Âʸ¶·ç (È®ÀåÇü Å𸶷ç)

Å𸶷ç 1000mm Çö°ü¹® ¼³Ä¡(¼ûÀº ¹®)


´©¸¶·ç ¹Ø Àå´ë ÁÖÃß 1000mm ¹Ø ¾Æ±ÃÀÌ ¼³Ä¡











½Ç³» ¸¶·ç - Çö°ü¿¬°á - ´Ù¶ô¿¬°á (Æò¼Ò ¾ÆÀÌÃ¥»ó,Â÷ŹÀ¸·Î Ȱ¿ë)








´Ù¶ô Ãþ ½Ç³» ³ôÀÌ 2200mm

´Ù¶ô Ãþ - ÇÏÃþ õÁ¤ Á¡°Ë±¸ ÃâÀÔ¹®

´Ù¶ô ³°£ °Å½Ç¿¡¼ ¿ÀÇÂ

´Ù¶ô ³°£

°è´Ü »óºÎ

TV ´ÙÀÌ, °¢¹æ¿Âµµ Á¶Àý±â

°¢¹æ ¿ÂµµÁ¶Àý±â








´©¸¶·ç¿¡¼ ÁÖ¹æ ±îÁö Á÷¼± µ¿¼±

´©¸¶·ç-¼Àç(¿å½Ç)-½ÄŹ-ÁÖ¹æ (¿¬°áµ¿¼±)



½ÄŹÀ§ Çѽĵî



°æµ¿ °¡½º º¸ÀÏ·¯

´©¸¶·ç Ãø¸é
