Home
Notice
Login
Join
Homepee
ȸ»ç¼Ò°³
Àλ縻
ȸ»ç¿¬Çõ
¿À½Ã´Â±æ
½ÅÇÑ¿Á °¡°Ý,½ºÆå
½ÅÇÑ¿Á-°¡°Ý,½ºÆå
º¸À¯±â¼úÁ¤º¸
Ư¼ö ÇÑ¿Á»ç¾÷
ÇÑ¿Á ÀÚÀç»ç¾÷
Æ÷Æ®Æú¸®¿À
½Ã°ø ¿Ï·á Æ÷Æ®Æú¸®¿À
½Ã°ø °úÁ¤ Æ÷Æ®Æú¸®¿À
ÇÑ¿Á °ü·ÃÀÚ·á
ÇÑ¿Á ½Ã°ø¾È³»
ÇÑ¿Á µµ¸é ÀÚ·á½Ç
ÇÑ¿Á °ßÀû³»±â
ÇÑ¿ÁÁÖÅÃ
ÇÑ¿Á»ó°¡
¸ñ±¸Á¶°ø»ç
°Ô½ÃÆÇ
°øÁö»çÇ×
Áú¹®°ú´äº¯
ÇÑ¿Á »çÁø ÀÚ·á½Ç
PRODUCT
PRODUCT
¡å
¢º ½Ã°ø Æ÷Æ®Æú¸®¿À
¢º ½Ã°ø °úÁ¤Æ÷Æ®Æú¸®¿À
¢º ÇÑ¿Á°ü·ÃÀÚ·á
¢º ÇÑ¿Á ½Ã°ø¾È³»
¢º ÇÑ¿Á µµ¸é ÀÚ·á½Ç
HOME > PRODUCT >
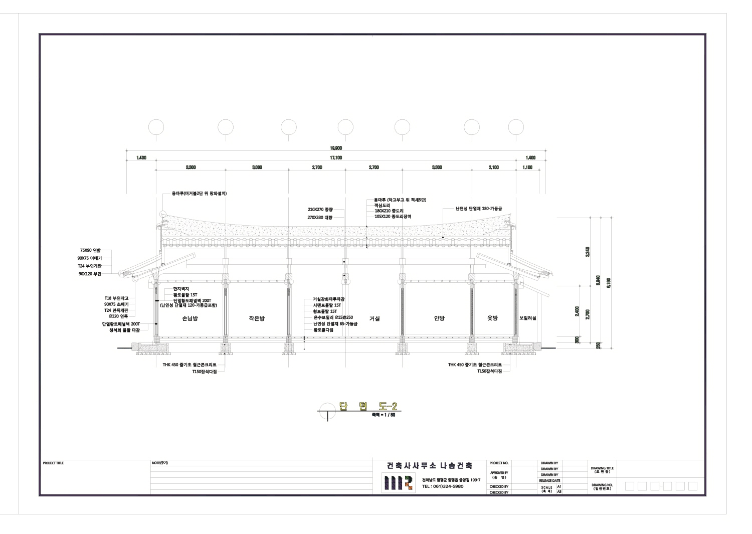
ÇÑ¿Á µµ¸é ÀÚ·á½Ç
Àü±¹250È£ ½ÇÀû,°ËÁõµÈ ÇÑ¿ÁÀü¹®±â¾÷.
PRODUCT
Á¦¸ñ
ÇÔÆò ÇÑ¿Á¸¶À» 34ÆòÇü »çÁø,µµ¸éÀÚ·á °ø°³(÷ºÎÆÄÀÏDWG)
ÀÛ¼ºÀÏÀÚ
2018-10-20
÷ºÎÆÄÀÏ
ÇÔÆò44.dwg
Home
ÀÌ¿ë¾à°ü
°³ÀÎÁ¤º¸ Ãë±Þ¹æÄ§
À̸ÞÀϹ«´Ü¼öÁý°ÅºÎ
¿Â¶óÀι®ÀÇ
ADMIN
¸ðµç ÄÁÅÙÃ÷ÀÇ ¹«´Üº¹Á¦ ¹× ÀçÆÇ¸Å¸¦ ±ÝÁöÇÕ´Ï´Ù.
Copyright(c)
by
ÁÖ½Äȸ»ç ÇÏ·çÇÑ¿Á
All Rights Reserved. Designed by
haruhanok.com
HOME
T O P
¡¿
Close
Online SMS
¼º¸í / ȸ»ç¸í
ÈÞ´ëÀüȹøÈ£
-
-
³»¿ëÀÔ·Â
»ó´ã ½ÅûÇϱâ